
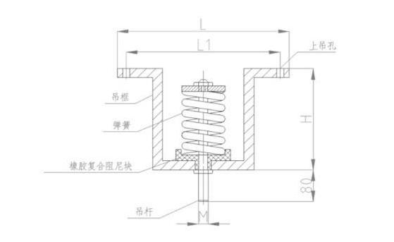
1、悬吊框上下连接面采用NR减振橡胶设计,能更有效隔绝因振动引起的低频噪音。
2、悬吊框及弹簧外观采取喷塑防锈处理,以延长使用寿命。
3、弹簧采用低频率值设计,防振效果好。
V型吊式减震器产品数据表:


橡胶减震器之所以如此被广泛的运用,是因为它有效的利用了橡胶的如下诸多特性:
(1)橡胶具有高弹性和黏弹性;
(2)与钢铁材质相比,橡胶的弹性变形很大,弹性模量很?。?/p>
(3)橡胶的冲击刚度大于动刚度,动刚度又大于静刚度,有利于减少冲击变形和动态变形;
(4)应力-应变曲线为椭圆形滞后线,其面积等于各个震动周期转变为热量的振能(阻尼),可通过配方设计调整之;
(5)橡胶为不可压缩性材料(泊松比为0.5);
(6)橡胶形状可以自由选择,硬度可以通过配方设计加以调整,可以满足不同方向的刚度和强度的要求。
载荷范围
载荷范围:245N-35040N;位移范围有二种:0-75mm、0-150mm;
结构
结构采用外挑管,消除音隙非常方便,且有螺纹防松设置;
连接管
长短连接管采用左右螺纹,安装距离詷量为40mm,且可现场调整,并设有螺纹防松设置;
间隙小
两端接口采用铰接,有效地消除了双向使用时的间隙;
载荷刻度
上刻度板上增设了载荷指示刻度,使调节载荷、工作载荷一目了然。
为了减少前面提到的路面对车辆的振动和冲击,需要弹簧把这些吸收振动和冲击的能量,弹簧在悬架中就是一个储能元件,但是暂时储存起来还不行,还要把这些对车辆乘坐舒适性和操纵稳定性不利的能量消耗掉,这是就轮到减振器登场了,液压式减振器的工作原理是当车架与车桥作往复相对运动,而活塞在缸筒内往复运动时,减振器壳体内的油液便反复地从一个内腔通过一些窄小的孔隙流入另一内腔,此时,孔壁与油液间的摩擦及液体分子内摩擦便形成对振动的阻尼力,使车身和车架的振动能量转化为热能,而被油液和减振器壳体所吸收,然后散到大气中。简单的说就是,将动能转化为热能。如果减振器在试验台连续运转几分钟,减振器贮油缸外壁会变得非常热,甚至烫手。
奔驰减震器是不是要更换?空调的风机盘管要记得装减震器哦!?在办公室里,在卧室里,您能否有过被空调的噪声震动折磨的难以忍受的阅历呢?安静的空间里,微小的声音有可能被放…
吊式弹簧减震器变形保修吗?1、吊式弹簧减震器连接的电源电压要稳定,因为如果电流过大或是过小都会让长期在此条件下使用的吊式弹簧减震器出现损坏的情况。2、吊式弹簧减震器放…
海马s5减震器怎么调软?目前,世界上已经纳入各种标准的有近100种,并且随着科技的进步和工农业的发展,新的牌号还在不断增加。对于一种已知牌号的,根据其化学成分可推算其铬当…

产品介绍: JB型弹簧减震器本体材质分为.殊强化尼龙及球状铸铁。.殊强化尼龙材质为尼龙加强..

DSM电机 橡胶减震条 产品 介绍: 1、减振条可以降低噪音和振动及延长设备使用寿命。 2、可提..

JGD型 橡胶剪切隔振器 是由合成橡胶和内置金属件组成,经过硫化成圆锥体,橡胶部分受剪切力..

JL型 弹簧减振器 产品介绍: 1.弹簧表面采用喷塑处理,防锈能力佳。 2.弹簧均经热处理及应力..
?管道弹簧减振器调试中的常见问题 1.调试过程中管道弹簧减震器无法调节制冷单元:原因可能是非人为调试; 未按照规定使用指定的制冷剂材料; 没有...
?福瑞迪换什么格柏威减震器漏油是什么原因?作为一种弹性储能装置,分别选用金属弹簧、磁弹簧和减震器。1)金属弹簧振动、吸收振动、降低噪声的能力...
?阻尼弹簧减振器ZTA-320冰水机质量如何1、混泥土防水涂料的挑选及砂浆配合比的设计方案:2、原料的质量管理及精确计量检定;3、施工现场的振捣力度及细...
?消防用水管道减震器具备的技术问题 技术性 本实用新型涉及到安防设备技术领域,实际为一种消防管道安装支撑结构。 背景技术 消防管减震器就是指用以...
?橡胶减震器在离心机泵中的安装方法有哪些? 1、橡胶减震器各构件应按离心机水泵的重要轴线对称布局,室内空间布局可顺时针或旋转。 2、橡胶减震器当...
?减震器在水泵运行时起重要效果 很多人都了解离心水泵减震器,水泵机械设备常见于城市供水、废水处理、水利水电工程、石化工业,我们的日常生活离不...
?高低可调弹簧减振器ZTA-160风冷螺杆冷水机组分解图1、高低可调弹簧减振器在启动时,应注意不能使高低可调弹簧减振器反转,以免引起高低可调弹簧减振...
?奔驰350怎么更换前猎豹前减震器性能的要求金属减震器主要应用于汽车减震,那么金属减震器在汽车减震中是怎样应用的呢?减震器太软,车身就会上下跳...